Trong dự án thiết kế nhà này, KTS đã sử dụng vật liệu và phong cách thiết kế đơn giản nhưng tinh tế, chỉ với các đồ nội thất cần thiết trong 65 m2 nhưng được bố trí dây chuyền sử dụng hợp lý, bố cục hài hoà và sử dụng kết phối những màu sắc trung tính nên sẽ không bị lỗi mốt sau một thời gian dài. Một vài điểm nhấn với màu sắc nóng hơn làm cho không gian thêm thú vị.

Phòng ăn và bếp được ngăn chia bởi một vách kính, có thể lùa qua lại để ngăn mùi khi nấu nướng bay vào phòng khách, đồng thời có thể cho ánh sáng giao thoa giữa 2 không gian này. Thiết kế nội thất căn hộ 2 phòng ngủ được "đo may" cho một gia đình ba người với 65m2, diện tích sinh hoạt chung khá thoải mái với phòng khách, bếp, toilet chung cùng hai phòng ngủ riêng dành cho cha mẹ và cậu con trai. Phương án thiết kế cải tạo không thay đổi nhiều về mặt bằng sử dụng, nhưng do sàn xấu và vị trí các cửa không thông thoáng nên các bức tường bên trong đã được thiết kế lại để tối ưu hoá ánh sáng tự nhiên.
Bảng màu được chọn từ xám nhạt, ghi và vàng làm điểm nhấn, hiệu ứng tổng thể trung tính nhưng đồng thời ấm áp. Các hệ tủ quần áo nằm trong phòng riêng biệt ở cuối hành lang và tủ quần áo trong phòng ngủ.
Phòng khác thiết kế nhẹ nhàng tinh tế và ấp áp với những bức tranh màu nóng làm điểm nhấn
Một bàn ăn nhỏ trong gian bến gọn gàng sạch sẽ
Phòng ngủ ba mẹ


Phòng ngủ con trai
Phòng tắm và toilet căn hộ

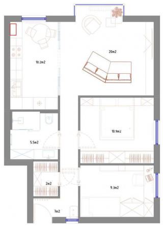
Mặt bằng bố trí.
Sourse lakbermagazin
Liên hệ thiết kế cải tạo nội thất căn hộ.
CÔNG TY KT - XD - TTNT MỘC DECOR.
Website : www.moc.com.vn và www.mocdecor.vn
Head Office : 39/4 Phan van Hon Street, Hoc mon Dist, Ho chi Minh City Viet nam
Office 2 : 3/147B Le Thi Ha Street, 12 Dist , Ho Chi Minh City, Viet Nam
Factory : 152 / 251 B1 My Hoa 2 , Hoc Mon Dist , Ho Chi Minh City
Tel : 08 36012790 Hp : 0909555908 . Email : This email address is being protected from spambots. You need JavaScript enabled to view it.










































